Skip To Content

1328 Overland Ave

Burley, ID 83318
  • $460,000
  • STATUS: Active
  • ON SITE: 85 Days
  • MLS #: 98968128
UPDATED: 124 min ago
$460,000
  • 0
    BEDS
  • 0.14
    ACRES
  • 0
    BATHS
  • 0
    1/2 BATHS
  • 5,251
    SQFT
  • $88
    $/SQFT
Type:
Commercial
Built:
1925
County:

School Ratings & Info

Intermountain MLS logoCourtesy of Gem State Realty Inc at 208-734-0400.

Description

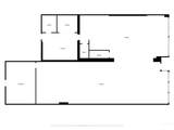
Real property only (Business not for sale). Building has been a music store since it was Wood's Music in the 1960's. In 1983 they purchased Miller Drug next door and renovated as one store. The building sits on two parcels and could be restored as separate storefronts. Furnaces were new in 2013, lighting updated to LED in 2015, new roof in 2023. Employee parking in the back off the alley. Current layout has 4027 SF on main level, with 1225 SF of basement with over 7' ceilings PLUS an ADDITIONAL 625 SF of basement storage. Main floor has a receiving/storage room in the back, 3 offices and one restroom with an on-demand water heater. It is practically a vanilla space for your use. Seller WILL allow this to be a music store under a different name without a non-compete. Burley is a stable community experiencing exceptional growth currently. Here you have access to plentiful natural resources, food industry manufacturing and fuel production.

Monthly Payment Calculator



Intermountain MLS logo© 2026 Intermountain Multiple Listing Service, Inc. (IMLS). Real estate listings held by brokerage firms other than At Home Real Estate are marked with the IMLS IDX logo and information about them includes the name of the listing brokerage. Information provided by IMLS is deemed reliable but not guaranteed. IDX information is provided exclusively for consumers' personal, non-commercial use and it may not be used for any purpose other than to identify prospective properties consumers may be interested in purchasing. IMLS does not assume any liability for missing or inaccurate data. Data last updated 2026-02-15T00:10:25.11.
www.athomepalouse.com/homes/170565670
Print Image

1328 Overland Ave Burley, ID 83318

  • Price: $460,000
  • Status: Active
  • On Site: 85 Days
  • Updated: 124 min ago
  • MLS #: 98968128
0
Beds
0
Baths
0
½ Baths
0.14
Acres
5,251
SQFT
$88
$/SQFT
1925
Built
Neighborhood:
Burley-Rupert-Minicassia - 2005
County:
Cassia
Area:
Burley-Rupert-Minicassia - 2005
Property Description
Real property only (Business not for sale). Building has been a music store since it was Wood's Music in the 1960's. In 1983 they purchased Miller Drug next door and renovated as one store. The building sits on two parcels and could be restored as separate storefronts. Furnaces were new in 2013, lighting updated to LED in 2015, new roof in 2023. Employee parking in the back off the alley. Current layout has 4027 SF on main level, with 1225 SF of basement with over 7' ceilings PLUS an ADDITIONAL 625 SF of basement storage. Main floor has a receiving/storage room in the back, 3 offices and one restroom with an on-demand water heater. It is practically a vanilla space for your use. Seller WILL allow this to be a music store under a different name without a non-compete. Burley is a stable community experiencing exceptional growth currently. Here you have access to plentiful natural resources, food industry manufacturing and fuel production.
Exterior Features

Construction Materials BrickStucco Foundation Details Basement Lot Features Standard Lot 6000-9999 SF Parking Features 1 - 5 Spaces Roof Rolled/Hot Mop

Interior Features

Above Grade Finished Area Units Square Feet Below Grade Finished Area Units Square Feet Building Area Total 5251 Cooling Central Air Cooling YN Yes Flooring Wood Heating Forced AirNatural Gas Heating YN Yes

Property Features

Business Type Retail Land Lease YN No Listing Terms CashConventional Possible Use Office Suitable(Medical OfficeWholesaleCreative/LoftInstitutional/GovOffice BuildingR&D)Retail Suitable(Day Care FacilityRetail PadStreet Retail)Special Purpose Suitable(Religious) Tax Annual Amount 1302 Tax Legal Description B Twst Lot 25 Blk 136B Twst Lot 24 Blk 136 Utilities Sewer ConnectedNatural Gas Available Water Source City Service Zoning Description C1

Intermountain MLS logoCourtesy of Gem State Realty Inc: 208-734-0400.


Intermountain MLS logo© 2026 Intermountain Multiple Listing Service, Inc. (IMLS). Real estate listings held by brokerage firms other than At Home Real Estate are marked with the IMLS IDX logo and information about them includes the name of the listing brokerage. Information provided by IMLS is deemed reliable but not guaranteed. IDX information is provided exclusively for consumers' personal, non-commercial use and it may not be used for any purpose other than to identify prospective properties consumers may be interested in purchasing. IMLS does not assume any liability for missing or inaccurate data. Data last updated 2026-02-15T00:10:25.11.
 
https://bt-photos.global.ssl.fastly.net/imls/1280_boomver_1_98968128-2.jpg https://bt-photos.global.ssl.fastly.net/imls/1280_boomver_1_98968128-2.jpg https://bt-photos.global.ssl.fastly.net/imls/1280_boomver_1_98968128-2.jpg
Logo
At Home Real Estate
224 W. 3rd Street
Moscow ID, 83843
Intermountain MLS logoCourtesy of Gem State Realty Inc at 208-734-0400.